Trilocale in vendita

Banchette, Via castellamonte
€ 55.000
3 locali 3 locali
82 Mq 82 Mq
1 bagno 1 bagno

Trilocale in vendita

Banchette, Via castellamonte

Descrizione annuncio

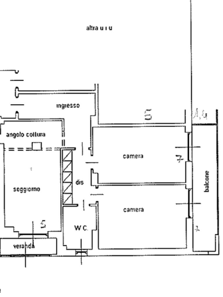
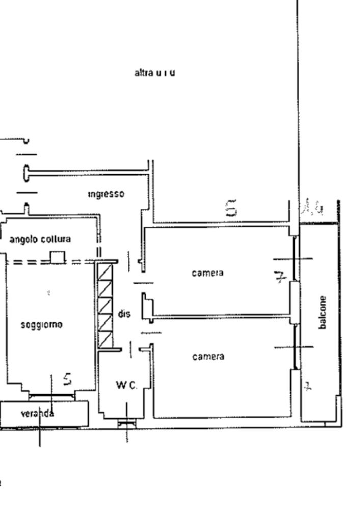
Nel comune di Banchette, proponiamo in vendita un appartamento di 82 mq situato al piano alto di un edificio dotato di ascensore. L'immobile, è stato recentemente ristrutturato, offrendo un ambiente moderno e accogliente. L'ingresso si apre su un ampio soggiorno living, ideale per momenti di relax e convivialità. Le due camere da letto, entrambe luminose, garantiscono un'atmosfera serena e confortevole. Il bagno è dotato di una pratica doccia, con finiture moderne che ne esaltano la funzionalità. Completano la proprietà due balconi, perfetti per godere di momenti all'aria aperta e per ammirare il panorama circostante. Questa soluzione abitativa rappresenta un'opportunità interessante per chi cerca un'abitazione comoda e ben collegata, in una zona tranquilla e servita.

Mostra tutto

Nelle vicinanze

Trasporto pubblico Trasporto pubblico
Ivrea
Ivrea
1,8 Km
Banchette (v. Castellamonte/v. Torretta)
Banchette (v. Castellamonte/v. Torretta)
90 m
Banchette (v. Castellamonte 25)
Banchette (v. Castellamonte 25)
210 m
Ricariche auto elettriche Ricariche auto elettriche
Duferco Re Umberto
2,5 Km
Scuole Scuole
Scuola Primaria di Samone
1,1 Km
Accademia dell'hardware e del software libero Adriano Olivetti
1,4 Km
Polo formativo OfficinaH
1,5 Km
Formazione ASLTO4
1,5 Km
Corso di laurea in Infermieristica
1,5 Km
Farmacia Farmacia
Farmacia Borgo Nuovo
470 m
Farmacia Comunale 15
910 m
Farmacia
1,0 Km
Farmacia Piovera Dott. Enrico
1,8 Km
farmacia Dora s.n.c.
1,8 Km
Ospedali Ospedali
Ospedale Civile Ivrea
2,0 Km
Clinica Eporediese
2,1 Km
Supermercati Supermercati
Conad
1,7 Km
A&O
1,7 Km
Bennet
2,0 Km
Lidl
2,4 Km
Carrefour Express
2,6 Km
Negozi Negozi
Negozi
680 m
Panificio Scavarda - la Bottega delle Lingue
1,7 Km
Panetteria Perin Riz Lucia
1,7 Km
Grace Fashion
1,8 Km
Panetteria Pasticceria Pizza DOC
1,8 Km
Bar Bar
Enoteca Bar AStor
1,8 Km
Belushi
2,5 Km
Caffé Antico
2,6 Km
Ristoranti Ristoranti
Trattoria Moderna - Il Simposio
460 m
Asia
510 m
Ristorante Bacco
960 m
La Bella Dormiente
1,0 Km
La Ferrere
1,2 Km
Mostra tutto

Caratteristiche

Rif.:
61100755
Piano:
6 con ascensore (Piano alto)
Balconi:
2
Camere da letto:
2
Arredamento:
Assente
Condizionamento:
Assente
Mostra tutto
Prezzo Prezzo
€ 55.000
Rata mutuo Rata mutuo
€ 254 / mese
Proponi il tuo prezzoProponi il tuo prezzo

Classe Energetica

E
E
E
E
E
E
E
E
E
EP globale non rinnovabile:
275.78 kW h/m² anno
EP globale rinnovabile:
13.67 kW h/m² anno
EP invernale del fabbricato:
EP estiva del fabbricato:
Anno di costruzione:
1967
Riscaldamento:
Centralizzato
Tipo impianto:
A radiatori
Tipo alimentazione:
Metano

Ti interessa visionare l'immobile?

Fissa un appuntamento  Fissa un appuntamento

Richiedi informazioni

* Questi campi sono obbligatori

Calcola il tuo mutuo

Semplice e senza impegno
Anticipo

( % )
Mutuo

( % )

pochi semplici passi

inserisci i tuoi dati
Questionario completato
Grazie per aver richiesto un appuntamento senza impegno con un nostro Consulente del Credito e Assicurativo.

Hai inserito correttamente tutti i dati necessari e a breve riceverai una e-mail con un link da convalidare per inviare i tuoi dati.
Affiliato
Studio Banchette Sas
Via Castellamonte, 11/D 10010 Banchette (TO)

Il nostro staff


  • Dario Mazzillo
    Affiliato

  • Salma Ellami
    Coordinatrice

  • Jaqueline De Cassia Motta Barbosa Bradaci
    Collaboratrice

  • Rita Sampaio Santiago
    Collaboratrice

  • Alessandro Viberti
    Collaboratore
Via Castellamonte, 11/D 10010 Banchette (TO)
Zona: Ivrea-Banchette-Pavone-Samone
Mostra su mappa
Orari: dal lunedì al sabato, dalle 9:00 alle 12:30 dalle 14:30 alle 19:30.
Affiliato
Studio Banchette Sas
Via Castellamonte, 11/D 10010 Banchette (TO)

2025 Tecnocasa Franchising S.p.A. - P. IVA 08365160152 - Via Monte Bianco 60/A 20089 Rozzano (MI). Ogni agenzia ha un proprio titolare ed è autonoma. Privacy policy | Policy utilizzo | Cookie policy