Casa semindipendente in vendita

Pavone Canavese, Via borgata scarione - Chiusellaro-Verna
€ 152.000
6 locali 6 locali
205 Mq 205 Mq
3 bagni 3 bagni

Casa semindipendente in vendita

Pavone Canavese, Via borgata scarione - Chiusellaro-Verna

Descrizione annuncio

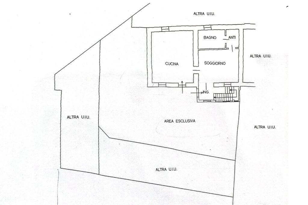
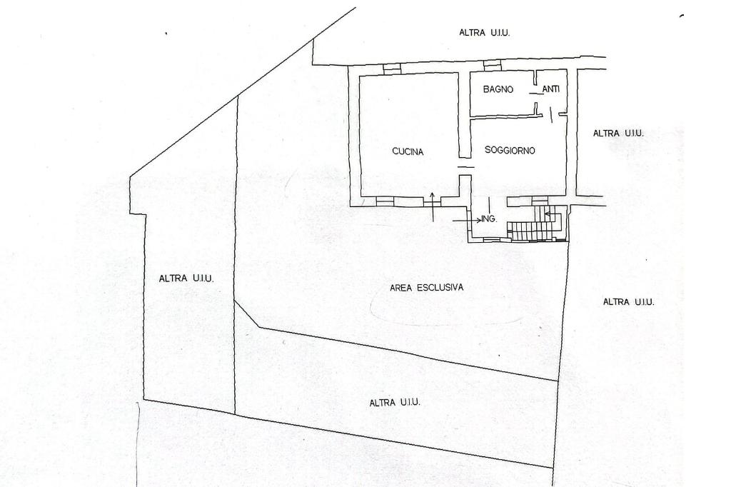
Nel comune di Pavone Canavese, nella tranquilla località di Chiuseellaro-Verna, è disponibile per la vendita una casa semindipendente di 205 mq. Questa abitazione ristrutturata nel 2008, offre spazi ben distribuiti e funzionali. Al piano terra, un ampio soggiorno accoglie gli ospiti, mentre la cucina abitabile è perfetta per i momenti conviviali. Le tre camere da letto, tutte spaziose, garantiscono comfort e privacy. La presenza di doppi servizi bagno al piano principale e un terzo bagno nel piano mansardato abitabile aggiunge praticità alla vita quotidiana. Due balconi offrono spazi esterni per rilassarsi. Completano la proprietà un box auto e un cortile privato, ideale per chi cerca un angolo di verde. Questa casa rappresenta un'opportunità per chi desidera vivere in un contesto tranquillo senza rinunciare alla comodità.

Mostra tutto

Nelle vicinanze

Trasporto pubblico Trasporto pubblico
San Bernardo (v. Torino/Canton Arbore)
San Bernardo (v. Torino/Canton Arbore)
740 m
San Bernardo (v. Torino/Canton Mussano)
San Bernardo (v. Torino/Canton Mussano)
770 m
Scuole Scuole
Scuola Primaria Statale "San Bernardo"
620 m
Scuola Primaria Statale Don Milani
1,2 Km
Istituto Tecnico Industriale ITIS "Camillo Olivetti"
1,6 Km
Scuola Media Statale "Leonardo da Vinci"
1,8 Km
Scuola Primaria Statale Adriano Olivetti
2,1 Km
Farmacia Farmacia
Farmacia
1,8 Km
Farmacia Piovera Dott. Enrico
2,4 Km
Farmacia Borgo Nuovo
2,7 Km
Farmacia Comunale 15
2,8 Km
Supermercati Supermercati
A&O
1,1 Km
Conad
2,2 Km
Negozi Negozi
Buenos Dias
1,3 Km
Panetteria Pasticceria Pizza DOC
2,3 Km
Forno Le Tre Spighe
2,4 Km
Lucana
2,5 Km
La Bottega del Pane
2,7 Km
Bar Bar
Enoteca Bar AStor
2,2 Km
Ristoranti Ristoranti
Pizzeria Vecchia Posta
780 m
Ristorante Castello di Pavone
1,3 Km
La Bella Dormiente
1,8 Km
La Ferrere
1,9 Km
Trattoria Moderna - Il Simposio
2,7 Km
Mostra tutto

Caratteristiche

Rif.:
61134695
Box:
1
Balconi:
2
Camere da letto:
3
Arredamento:
Assente
Condizionamento:
Assente
Mostra tutto
Prezzo Prezzo
€ 152.000
Rata mutuo Rata mutuo
€ 701 / mese
Spese annue Spese annue
€ 0
Proponi il tuo prezzoProponi il tuo prezzo
Immobile valutato con T·Valuta

Classe Energetica

F
F
F
F
F
F
F
F
F
EP globale non rinnovabile:
238.14 kW h/m² anno
EP globale rinnovabile:
4.08 kW h/m² anno
EP invernale del fabbricato:
EP estiva del fabbricato:
Anno di costruzione:
1967
Riscaldamento:
Autonomo
Tipo impianto:
A radiatori
Tipo alimentazione:
Metano

Ti interessa visionare l'immobile?

Fissa un appuntamento  Fissa un appuntamento

Richiedi informazioni

* Questi campi sono obbligatori

Calcola il tuo mutuo

Semplice e senza impegno
Anticipo

( % )
Mutuo

( % )

pochi semplici passi

inserisci i tuoi dati
Questionario completato
Grazie per aver richiesto un appuntamento senza impegno con un nostro Consulente del Credito e Assicurativo.

Hai inserito correttamente tutti i dati necessari e a breve riceverai una e-mail con un link da convalidare per inviare i tuoi dati.
Affiliato
Studio Banchette Sas
Via Castellamonte, 11/D 10010 Banchette (TO)

Il nostro staff


  • Dario Mazzillo
    Affiliato

  • Salma Ellami
    Coordinatrice

  • Jaqueline De Cassia Motta Barbosa Bradaci
    Collaboratrice

  • Rita Sampaio Santiago
    Collaboratrice

  • Alessandro Viberti
    Collaboratore
Via Castellamonte, 11/D 10010 Banchette (TO)
Zona: Ivrea-Banchette-Pavone-Samone
Mostra su mappa
Orari: dal lunedì al sabato, dalle 9:00 alle 12:30 dalle 14:30 alle 19:30.
Affiliato
Studio Banchette Sas
Via Castellamonte, 11/D 10010 Banchette (TO)

2025 Tecnocasa Franchising S.p.A. - P. IVA 08365160152 - Via Monte Bianco 60/A 20089 Rozzano (MI). Ogni agenzia ha un proprio titolare ed è autonoma. Privacy policy | Policy utilizzo | Cookie policy